Umbau
Wohn- und Geschäftshaus an der Brunaustrasse
Zürich, 2013 – 2015






Licht, Luft und Sonne
Die neuen Eigentümer des, in eine Blockrandstruktur eingebundenen, Hauses von 1895 haben den Laden im Erdgeschoss und die zwei darüber liegenden Wohnungen sowie die Maisonette herrichten lassen.
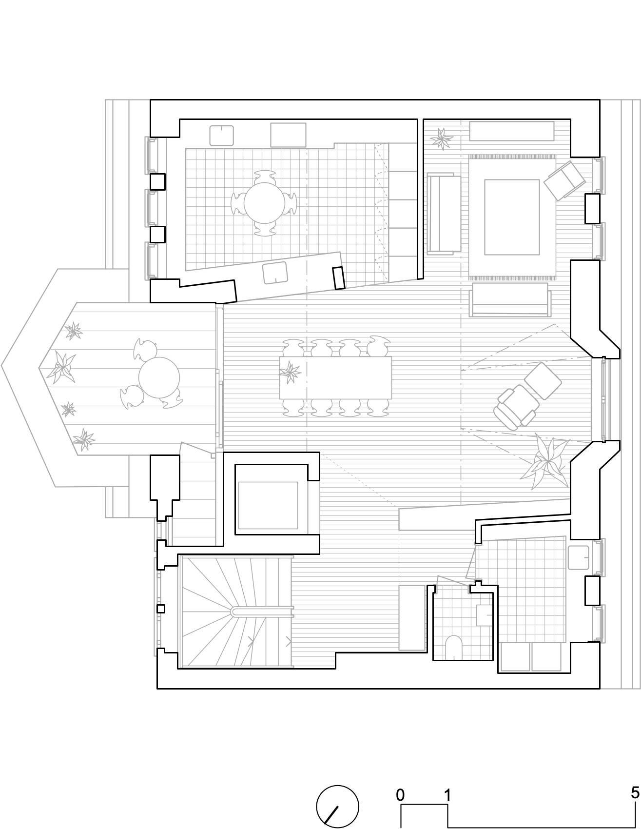
Nach intensiven baurechtlichen Abklärungen und der Einigung über die erforderlichen Näherbaurechte mit mehreren Nachbarn konnten im Zuge des weitreichenden Umbaus der neue Lift in das Haus integriert werden und mit dem hofseitigen Vorbau Platz in den Wohnungen sowie eine Terrasse für die Dachgeschossebene geschaffen werden.
Bis zum 2. Obergeschoss wurde das Treppenhaus als Haupterschliessung erhalten und von Grund auf renoviert. Im Bereich der Maisonette aber wurden neue Treppen bis zu der als Dachterrasse ausgebauten Zinne, zur bequemeren Erschliessung, eingebaut. In den Wohnungen wurde im Zuge der Neuordnung der Grundrisse, mit Neueinbau aller Bäder und Küchen, die gesamte Haustechnik erneuert und zur notwendigen statischen Ertüchtigung ein Teil der Holzbalkendecken ausbetoniert bzw. ersetzt.
Der tiefgreifende Umbau des Dachstuhls, mit Entfall der Winde, macht ein grosszügiges Raumerlebnis im Bereich von Wohnen und Essen im Dachgeschoss möglich. Es konnten, trotz der strengen Auflagen der Stadt Zürich, über die grosse neue Gaube und die in ganzer Breite öffenbare Schiebeverglasung zur Terrasse lichte und helle Räume geschaffen werden.
Die Materialisierung orientiert sich nach aussen hin sehr zurückhaltend am Bestand, während in der Maisonette das von den entwerfenden Architekten KENH in Wien entwickelte Material- und Farbkonzept zusammen mit einem guten Schreiner sehr sorgfältig umgesetzt wurde.
Zeitraum | 2013 – 2015
Bauherrschaft | Privat
Ort | 8002 Zürich
Kubatur | 3'800 m3 SIA 416
Bausumme | CHF 3'800'000.-
Leistungen | Projektierung auf Basis Projekt KENH, Ausführungsplanung, GU-Ausschreibung, gestalterische Leitung sowie Planung und Bauleitung des Ausbaus der Maisonette
Fotos | Hannes Henz



