Aufwertung
Mehrfamilienhaus Buckhauserstrasse
Zürich, 2017 – 2018





Das Letzte seiner Art
Das 1895 erbaute Haus ist eines der letzten seiner Art im Quartier. Es steht in der Zentrumszone 6, wo gemäss den aktuellen Bauvorschriften sechs Vollgeschosse und 22m hoch gebaut werden darf.
Eine Studie hat 2016 ergeben, dass mit einem Näherbaurecht des Nachbarn der Ersatz des Dachgeschosses durch zwei Vollgeschosse möglich wäre. Ziel der Bauherrschaft war es jedoch, den ursprünglichen Charakter des Hauses zu erhalten.
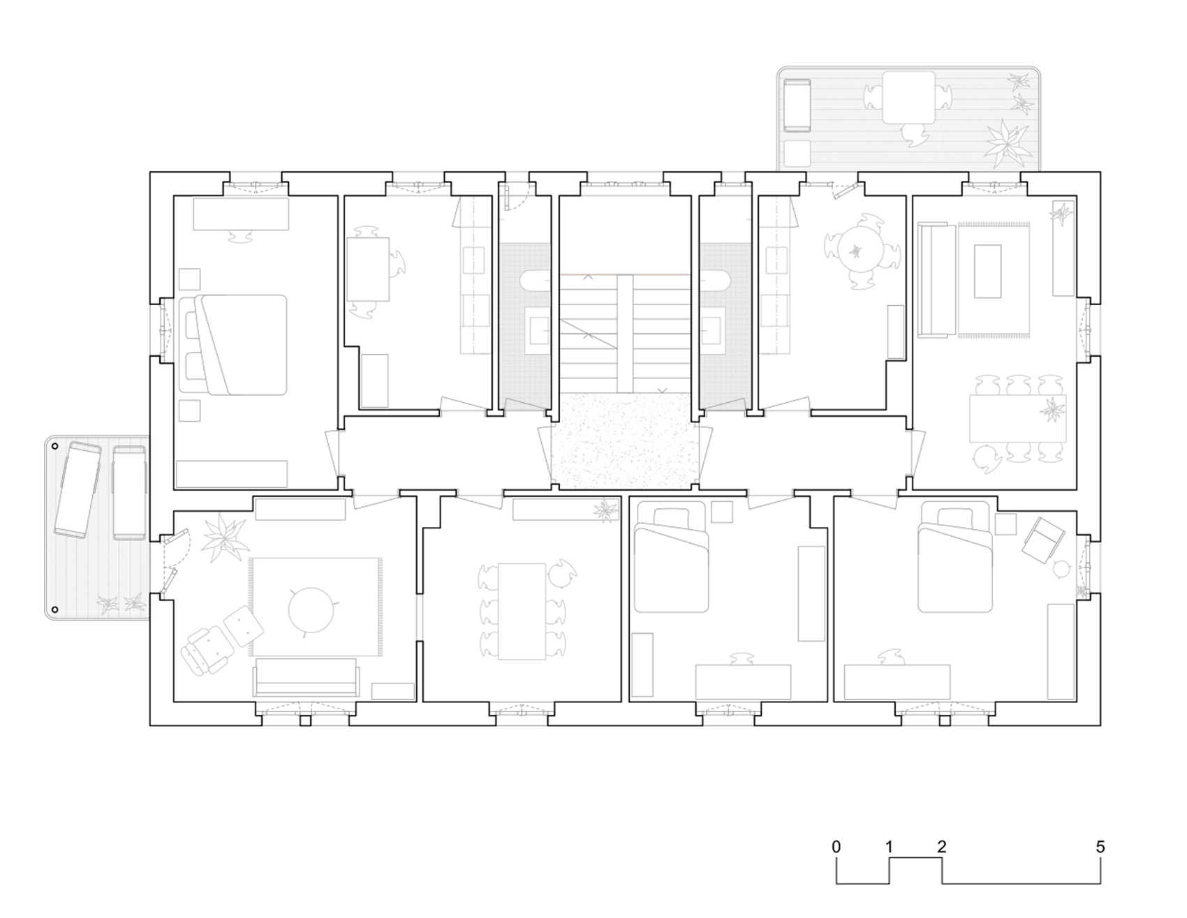
Sorgfältig im Grundriss gesetzte Balkone schaffen neue Aussenräume und werten jede einzelne Wohnung auf. Die beiden Wohnungen im Dachgeschoss teilen sich neu die vorhandene Dachterrasse.
Im Inneren des Gebäudes wurden nur wenige Eingriffe gesetzt. So wurde der bestehende Fischgrat- Parkett und die hölzernen Wandvertäfelungen aufgearbeitet und vollständig erhalten. Neue und moderne dreifachverglaste Holz- Alu Fenster schaffen Behaglichkeit im alten Gewand.
Zeitraum | 2017 – 2018
Bauherrschaft | Felix Hegi
Ort | Buckhauserstrasse 18, 8048 Zürich
Kubatur | 2'990 m3 SIA 416
Bausumme | CHF 470'000.–
Leistungen | Projektierung, Ausführungsplanung, gestalterische Leitung, Bauleitung
Referenz | Felix Hegi
Fotos | Friedemann Rieker


